#OConnellStreet Planning Matters – July 2021

This afternoon, the Central Area Committee of Dublin City Council meets to examine and consider three planning applications lodged with the Planning Department by Hammersons to redevelop five sites in and around O’Connell Street and Moore Street.
Dublin Central GP Ltd lodged the three applications on June 1st last.
The planning applications include:
- 2861/21,
- 2862/21,
- 2863/21.
The proposed developments associated with these applications relate to an area bounded by Henry Street, Moore Lane, Moore Street, O’Rahilly Parade and Henry Place.
The applications include provision of a Master Plan of the five sites in the ownership of Dublin Central GP Ltd. Some of the stated aims of the Master Plan include:
- Create a mixed-use city centre destination including spaces for living, working and socialising
- Restore O’Connell Street
- Create new pedestrian streets
- Retain key protected structures and buildings of significance
- Provide sensitive redevelopment around the National Monument (14-17 Moore Street)
- Create a 1916 Historical Trail in consultation with stakeholders
- Create a new public square
- Enabling works for Metrolink station
Features of the Masterplan include:
- New east-west link from O’Connell Street (MetroLink station) through to Moore Street
- Respond to historical context by, retaining and following the historic street pattern and plot widths, heights and materials including on Moore Street
- Retention of buildings and of the building lines and plot widths of 10-25 Moore Street
- Bringing 8, 9, 19 and 20-21 Moore Street back into use
- New archway at location of 18-19 Moore Street, to maintain the building line while also providing for permeability through from O’Connell Street
- Widening of O’Rahilly Parade
- New space at junction of Moore Lane and Henry Place
- Restoration of historic setts on laneways
Landscape Masterplan

Site 3 (Reg. Ref. 2861/21)

Site 3 is a 0.37ha site located at:
36 – 41 Henry Street, Nos. 1 – 9 Moore Street, 3 – 13 Henry
Place (formerly known as 2 – 13 Henry Place), Clarke’s Court and Mulligan’s Lane.
Site also includes the rear of 50 – 51 and 52 – 54 Upper O’Connell Street, 13 Moore Lane, 14 Moore Lane (otherwise known as 1–3 O’Rahilly Parade and 14–15 Moore Lane or 1–8 O’Rahilly Parade and 14–15 Moore Lane).
The site is within the O’Connell Street Architectural Conservation
Area.
Site 3 – Proposed Development
Seven-year permission sought for a mixed-use scheme (c.15,842.4m2 gfa) accommodated in two blocks, ranging in height from one to nine storeys over two new independent single level basements.
New passageway to separate the two new blocks, connecting Henry Street and Henry Place.
Block 3A (Eastern Block)
Fronting Henry Street, Henry Place and the new passageway accommodating:
– A hotel (c. 7,175.34m2 gfa) with 150 bedrooms from 1st to 7th floor and ancillary facilities at ground floor and basement, including two licensed hotel restaurant/café units at ground floor and 8th floor with two associated external terraces.
– Two retail units for use as a ‘shop’ or ‘licensed restaurant/café unit with takeaway/collection facility.
Block 3B (Western Block)
Fronting Henry Street, Moore Street, Henry Place and the new passageway, with modulating building height at 1, 3, 5, 6 and 7 storeys, with top storey set back, over single storey basement and accommodates:
• 79 ‘Build-to-Rent’ apartment units including 14 units described as one-bed studios, 56 one-bedroomed apartments and nine two-bedroomed apartments from first to fifth floors, internal residents’ amenity areas at ground and 6th floors and external terrace areas at sixth floor level.
• 9 retail units, for use as a ‘shop’ or ‘licensed restaurant/café units with takeaway / collection facility
• a two-storey building for cultural/gallery use with restaurant/café (c. 123.4m2) replacing 10 Henry Place.
Demolition of all other existing buildings and structures on site (c.6,701m2) including 38 Henry Street, to form a new passageway linking Henry Street to Henry Place;
Demolition of boundary wall onto Moore Lane at the rear of 50 – 51 and 52 – 54
Upper O’Connell Street (a protected structure) ;
Conservation, repair, refurbishment and adaptive reuse of part of the existing building fabric,
including:
– Retention of 36 – 37 Henry Street, with alterations, a vertical extension and new
shopfronts
– Retention of 39 – 40 Henry Street (upper floor façade)
– Retention of 8 – 9 Moore Street, with internal and external alterations and new shopfronts;
– Retention of 11 – 13 Henry Place, with internal and external alterations and new shopfronts;
160 bicycle parking spaces within secure bicycle facility with no car parking proposed.





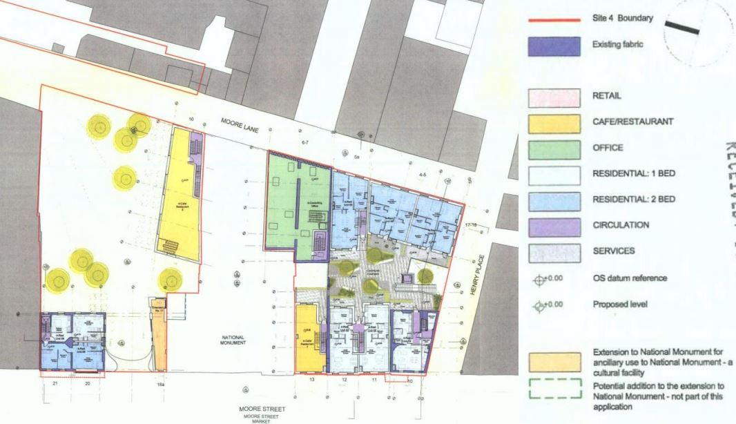
Site 4 (Reg. Ref. 2862/21):

Site 4 comprises:
• 10-13 & 18-21 Moore Street
• 5A Moore Lane (also known as 15-16 Henry Place)
• 6-7 and 10-12 Moore Lane
• 17-18 Henry Place (also known as 4-5 Moore Lane)
Site also includes the rear of
• 50-51 & Nos. 52-24 Upper O’Connell St.
• 13 Moore Lane
• 14 Moore Lane (aka 1-3 O’Rahilly Parade, 14-15 Moore Lane or 1-8 O’Rahilly Parade and 14-15 Moore Lane)
14 – 17 Moore Street (National Monument / Protected Structures) are bounded to the north and south by the site.
Proposed development retains 6 – 7 Moore Lane, 10 Moore
Street and 20 – 21 Moore Street with internal and external
alterations and new shopfronts.
Proposal provides for demolition of all other existing buildings
and structures on site.
Demolition includes rear boundary wall onto Moore Lane at the
rear of 50 – 51 and 52 – 54 Upper O’Connell Street (a protected structure)
Seven-year permission sought for mixed use development (c. 3,290m2) in two parts, located north and south of 14 – 17 Moore Street, ranging in height from one to three storeys and including retained independent single storey basements.
Proposed development includes:
– 15 apartments (9 x one-bed and 6 x two-bed),
– Four café/restaurant units (c. 864m2)
– Five retail units (c. 617m2)
– Cultural use (c. 60m2)
– Office use (c. 295m2).
New two-storey extension at side of 17 Moore Street (National Monument / Protected Structure) for ancillary use to the National Monument – a cultural facility (c. 60m2).
Part of a new public plaza (1,085m2) and associated temporary works pending completion of the combined plaza with the concurrent planning application for the adjoining Site 5 immediately to the north (overall plaza 1,253m2).
Provision of an archway between the gable of 20 Moore Street and the new two-storey extension to 17 Moore Street (National Monument / Protected Structure) to form an entrance to a new public plaza off Moore Street.
Conservation, repair, refurbishment and adaptive reuse of part of existing building fabric.
Demolition works as previously described.



Site 5 (Reg. Ref. 2863/21):

Site 5 comprises:
0.18 hectare site at No. 22 – 25 Moore Street,
13 Moore Lane,
14 Moore Lane (otherwise known as 1 – 3 O’Rahilly Parade and 14 – 15 Moore Lane or 1 – 8 O’Rahilly Parade and 14 – 15 Moore Lane) and otherwise generally bounded by O’Rahilly Parade to the north, Moore Lane to the east, 21 Moore Street and 12 Moore Lane to the south and by Moore Street to the west.
15-year permission sought for:
Mixed-use scheme in a single building (c. 6,478m2 gfa) ranging in height from 2 – 6 storeys (top floor set back) over single storey localised basement.
– Office space (c. 5,753m2) from 1st to 5th floor
– Three licensed restaurant / café units with takeaway / collection facility at ground floor with provision of a ‘delivery hub’ unit (c. 46m2) at ground floor level
– Demolition of all existing buildings and structures on site (c. 2,312m2);
– Provision of part of a new public plaza (168m2) and associated temporary works pending completion of the combined plaza with the concurrent planning application for the adjoining Site 4 immediately to the south (1,253m2public plaza overall);
– 58 bicycle parking spaces at ground floor level with associated cycling welfare facilities.


















Should you wish to see the full applications they are available online at http://www.DublinCity.ie.
Anyone can lodge an observation on the planning applications. If you decide to make an observation, it must be lodged in writing and sent to the Planning Department, Dublin City Council, Civic Offices, Wood Quay, Dublin 2 inclusive of the €20 fee before July 5th 2021.
Categories
raymcadam View All
Fine Gael Councillor - North Inner City
Chair, Urban Form & Planning Strategic Policy Committee