Sackville Avenue Housing – City Council proposal, September 2020.

Dublin City Council presented plans to North Inner City Councillors at this week’s Central Area Committee for infill development along Sackville Avenue.
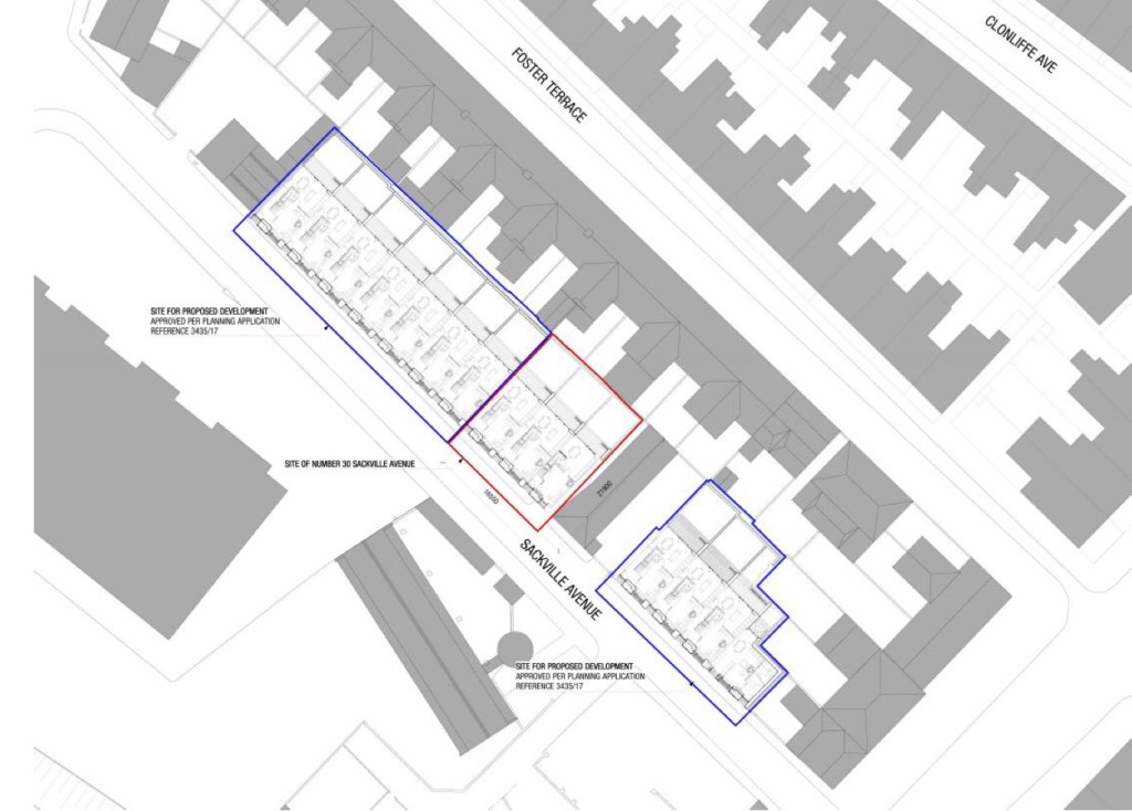
The Council intends to initiate the process leading to an application under Part 8 of the Local Government Planning and Development Regulations 2001 for the development of a site at Sackville Avenue, Dublin 3. In November 2017 Dublin City Council approved the development of lands at Sackville Avenue (Planning Report 367/2017, Planning Reference 3435/17). This development will comprise ten, two storey terraced dwellings and one three storey end of terrace dwelling.
In November 2019 Dublin City Council finalised the acquisition of lands at Number 30 Sackville Avenue. It is now proposed to develop these lands.
The proposed development will comprise the demolition of the existing derelict dwelling and outbuildings and the construction of three two storey, three bedroom terraced dwellings. The proposed dwellings will form an extension of the previously approved terraced development as set out in Planning Reference 3435/17.
The Housing Department will now undertake a review of the technical design for the previously planned housing so that the revised plans will incorporate the additional housing and ensure the designs bring the buildings up to the highest energy rating possible. When this work is completed and further details are available, I’ll share that information with local residents.
Categories
Ballybough, City Centre, Clonliffe Road, Dublin City Council, Housing, North Strand, Planning
raymcadam View All
Fine Gael Councillor - North Inner City
Chair, Urban Form & Planning Strategic Policy Committee